Short Description:
With the continuous development and progress of society, China's urban power grid has undergone tremendous changes, and most cities have formed or are forming numerous areas with high electricity demand. The power supply from substations 12/24KV lines (or branch lines)
Product overview:
With the continuous development and progress of society, China's urban power grid has undergone tremendous changes, and most cities have formed or are forming numerous areas with high electricity demand. The power supply from substations 12/24KV lines (or branch lines) to direct users in the past is no longer sufficient to meet the requirements of urban development. Therefore, a new power supply method has emerged, which supplies power to users through switching stations. However, with the intensification of urban density, some of the original civil construction type opening and closing stations have been limited by land and urban planning, thus a more advanced and practical DFW outdoor intelligent box type opening and closing station has emerged. This switchgear does not require civil construction and occupies a small area. Its configuration is very flexible and the power supply method is more reliable. The construction, installation, and commissioning time are greatly reduced, and the overall cost is lowered.
With the development of modern industry, the degree of automation and intelligence of electrical control equipment is increasing. Utilizing modern electronic technology, sensor technology, communication technology, and computer network technology to integrate monitoring, protection, control, and measurement of power equipment under normal and accident conditions, achieving good management, has become an inevitable trend and development direction.
The DFW box type switching station has installed and debugged the 12/24KV switchgear, circuit breakers, load switches, current and voltage transformers, 12/24KV power supply PT, switching station FTU, RTU, communication control terminal (CCU) 12/24KV metering and automatic meter reading, USP power supply and indicator instruments into a movable, sealed and moisture-proof stainless steel box, thus achieving the integration and modular assembly of the primary and secondary systems in the urban distribution network, shortening the construction period, and greatly improving the reliability of urban power grid operation.
Product Model Description:
Conditions of Use:
◇Altitude: ≤ 1000 meters;
◇Environmental temperature: maximum environmental temperature+40 ℃, minimum environmental temperature -25 ℃, maximum daily temperature difference of 25 ℃;
◇Relative humidity: daily average ≤ 95%, monthly average ≤ 90%:
◇Earthquake resistance: Ground horizontal acceleration of 0.2g and vertical acceleration of 0.1g act simultaneously. Adopting resonance, sine, and beat wave test methods, exciting 5 times with 5 waves each time and an interval of 2 seconds, with a safety factor of not less than 1.67;
◇The installation site should be free of gas vapor, chemical deposits, dust, pollution, and other explosive and corrosive media that seriously affect the insulation of the load switch;
◇Used in ungrounded systems and 10kV systems grounded through low resistance or arc suppression coils;
Note: If ordering this product exceeds the above conditions, please consult with our company.
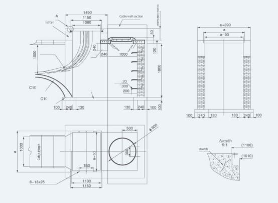
Installation foundation diagram (for reference):
